Projekt autonomicznej wioski miejskiej to rewolucyjna wizja społecznościowej przestrzeni mieszkaniowej, która nie tylko zapewnia komfortowe warunki życia, ale także stawia na harmonię między ludźmi a naturą. Domy, zaprojektowane z myślą o efektywnym wykorzystaniu energii i ekologicznych materiałach, są otwarte na światło i piękne widoki dzięki szklanym ścianom. Połączenie domów ze szklarniami i ogrodami nie tylko dostarcza żywność dla mieszkańców, ale także tworzy przestrzeń spotkań i integracji. Dodatkowo, wydzielony parking pod akwaponiką minimalizuje wpływ samochodów na środowisko, promując zrównoważony styl życia. To więcej niż tylko osiedle - to idea, która łączy ludzi w symbiozie z naturą.

Makieta

Wizualizacje

Wizualizacje

Wizualizacje

Przekroje

Plan zagospodarowania terenu

Rzuty budynków

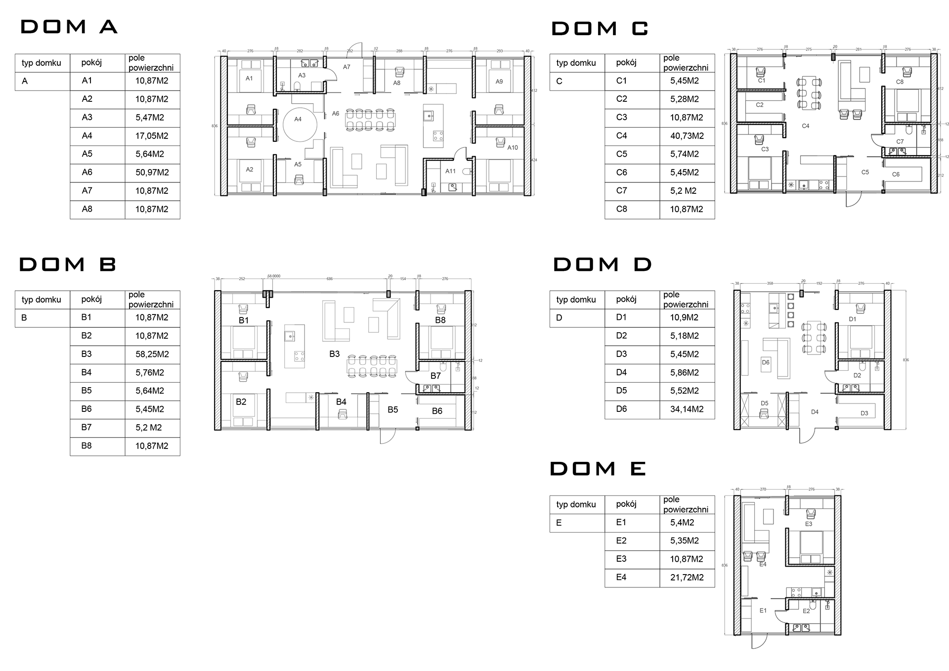
Rzuty mieszkań



Autorka: Jagoda Kamińska
Prowadzący: mgr inż. arch. Tomsz Broma